This website uses a variety of cookies, which you consent to if you continue to use this site. You can read our Privacy Policy for
details about how these cookies are used, and to grant or withdraw your consent for certain types of cookies.
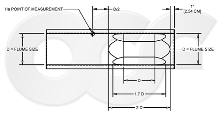
Point of Measurement Flexibility and Palmer Bowlus Flumes
Depending upon how the level-to-flow relationship is developed, flow measurement flumes can be divided into two types: short-throated (i.e. Parshall, Cutthroat, etc.) and long-throated (i.e. Palmer Bowlus, RBC, etc.). Flumes that are short-throated develop the flow relationship in a section of the flume where the flow lines are converging. Long-throated flumes develop the relationship in a section of the flume where the flow lines are parallel.
In applying the flumes, the short-throated ones have a single specific location where the flow relationship is valid. Upstream of this point and the flume will overread. Downstream of the point and it will under-read. Long-throated flumes offer more flexibility. So long as the reading is taken upstream of the throat (and outside of the draw down just before it), the relationship is valid.

For Palmer Bowlus flumes, this means that so long as the level is measured at least D/2 (D = flume size) upstream, then the flow equation is valid. This offers operators a degree of flexibility in where the reading is taken – and can “correct” for readings taken upstream of the nominal point of measurement (Ha = D/2).

Related Blog Posts
Explore more insights in our blog.
LOCATIONS IN ATLANTA, GA & BOISE, ID