This website uses a variety of cookies, which you consent to if you continue to use this site. You can read our Privacy Policy for
details about how these cookies are used, and to grant or withdraw your consent for certain types of cookies.
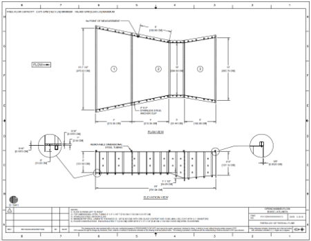
The 120-Inch Parshall Flume
The 120-inch Parshall Flume is the second largest of the prefabricated Parshall flumes available. The flume is used to measure larger surface water flows, primary water rights channels, and flows at larger wastewater treatment plants. The size of the flume is such that it must ship in multiple pieces.
Applications
The 120-inch Parshall flume is used in several applications:
- Surface waters
- Streams
- Rivers
- Large wastewater treatment plants
- Primary water rights channels
Configurations
Openchannelflow offers the 120-inch Parshall in either:
- Plain (for field formed inlet / outlet transitions)
- Wing Walls
- Radius / flat inlet wing walls
- Flat / flared outlet wing walls
Flume Accuracy
The accuracy of a Parshall flume can be affected if the flume either becomes submerged or shifts / settles out of position. Corrections for submergence and settling have been developed.
Under normal flows a Parshall flume with adequate upstream conditions, that has been installed properly, and was manufactured within tolerance, a Parshall flume can be expected to be accurate to within +/-5% (ASTM D1941) of the actual flow rate. Laboratory experiments have show the flume to be accurate to within +/-2%, but this level of accuracy is difficult to achieve in the field.
Flume Dimensions
Parshall flumes are not scale models of each other. The flumes are similar in layout, but they do differ in section lengths and convergence / divergence angles.
Free-Flow Equation
The general free-flow equation for Parshall flumes is:
Equation — Parshall Flume Free-flow
Q = free flow rate (cfs / m3/s)
K = flume discharge constant (varies by flume size / system of units)
Ha = depth at the point of measurement (feet / meters)
n = discharge component (dimensionless, depends upon flume size)
K = flume discharge constant (varies by flume size / system of units)
Ha = depth at the point of measurement (feet / meters)
n = discharge component (dimensionless, depends upon flume size)
For the 120-inch Parshall flume, the discharge values are:
| Minimum Head (ft) | 0.30 | Minimum Head (m) | 0.0914 |
| Minimum Flow Rate (cfs) | 5.737 | Minimum Flow Rate (l/s) | 162.5 |
| Maximum Head (ft) | 3.75 | Maximum Head (m) | 1.1430 |
| Maximum Flow Rate (cfs) | 326.4 | Maximum Flow Rate (l/s) | 9243 |
| Equation (cfs, ft) | 39.38*H1.6 | Equation (l/s, m) | 7463*H1.6 |
Discharge Table
The free flow discharge table for the 120-inch Parshall is available for download.
The table provides:
- Top-down view of the flume with the Ha (primary point of measurement) shown
- Discharge equations in SI and Imperial units
- Flume's accuracy
- Submergence Transition (St)
- Source for the table's information
Materials
Unlike our smaller Parsall flumes, Openchannelflow only offers the 120-inch Parshall flume in fiberglass. The logistics of moving a flume of that size at double the weight of fiberglass generally precludes making the flume out of galvanized steel.
Submergence Transition
A flume is said to be submerged when the downstream conditions are such that they restrict the flow out of the flume. The submergence transition (St) is point at which the impact of submergence is large enough that the indicated flow rate needs to be correct to match the actual flow rate.
Equation — Flume Submergence Transition
Q = free flow rate (cfs / m3/s)
K = flume discharge constant (varies by flume size / system of units)
Ha = depth at the point of measurement (feet / meters)
n = discharge component (dimensionless, depends upon flume size)
K = flume discharge constant (varies by flume size / system of units)
Ha = depth at the point of measurement (feet / meters)
n = discharge component (dimensionless, depends upon flume size)
The submergence transition for a 120-inch Parshall flume is 80%. A flume experiencing a submergence ratio at or above this point must have its indicated discharge corrected for the flume to be accurate.
Explore more insights in our blog.
LOCATIONS IN ATLANTA, GA & BOISE, ID