This website uses a variety of cookies, which you consent to if you continue to use this site. You can read our Privacy Policy for
details about how these cookies are used, and to grant or withdraw your consent for certain types of cookies.
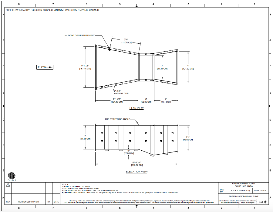
The 36-Inch Parshall Flume
The 36-inch Parshall Flume is equally at home measuring water rights, sanitary flows, and surface waters.
Applications
The 36-inch Parshall Flume is useful in a number of applications:
- Dewatering of mines
- Measuring surface waters
- Creeks
- Canals
- Streams
- WWTP
- Influent
- Effluent
- Lagoons
- Water rights
Configurations
Three standard configurations of the 36-inch Parshall Flume are available:
- Plain (for field formed inlet / outlet transitions)
- End adapters (allowing the flume to be connected to pipes / flanges)
- Stubs / flanges up to 36-inches [91.44 cm]
- Wing Walls
- Inlet / outlet wing walls for rectangular channels
Flume Accuracy
Research has shown that the Parshall Flume be accurate to within +/-2% under controlled, laboratory conditions. Field conditions differ however and the free-flow accuracy shouldn't be expected to be better than +/-5% (ASTM D1941).
Should the flume submerge or shift out of position, corrections for submergence and settling have been developed.
Flume Dimensions
Parshall Flumes are not scale models of each other. The flumes are similar in layout, but they do differ in section lengths and convergence / divergence angles.
Free-Flow Equation
The general free-flow equation for Parshall Flumes is:
Equation — Parshall Flume Free-flow
Q = free flow rate (cfs / m3/s)
K = flume discharge constant (varies by flume size / system of units)
Ha = depth at the point of measurement (feet / meters)
n = discharge component (dimensionless, depends upon flume size)
K = flume discharge constant (varies by flume size / system of units)
Ha = depth at the point of measurement (feet / meters)
n = discharge component (dimensionless, depends upon flume size)
36-inch Parshall flume:
| Minimum Head (ft) | 0.15 | Minimum Head (m) | 0.0457 |
| Minimum Flow Rate (cfs) | 0.6151 | Minimum Flow Rate (l/s) | 17.42 |
| Maximum Head (ft) | 2.50 | Maximum Head (m) | 0.7620 |
| Maximum Flow Rate (cfs) | 50.39 | Maximum Flow Rate (l/s) | 1427 |
| Equation (cfs, ft) | 12*H1.566 | Equation (l/s, m) | 2184*H1.566 |
Discharge Table
The free flow discharge table for the 36-inch Parshall is available for download.
The table provides:
- Top-down view of the flume with the Ha (primary point of measurement) shown
- Discharge equations in SI and Imperial units
- Flume's accuracy
- Submergence Transition (St)
- Source for the table's information
Materials
Openchannelflow offers the 36-inch Parshall Flume in four different materials:
- Aluminum
- Lightweight and abrasion resistant
- Fiberglass (FRP)
- Lightweight and easily customized
- Galvanized steel
- Most economical
- Stainless steel
- Greatest resistance to abrasion and corrosion
Submergence Transition
Submergence in a flume is when the downstream conditions are such that they restrict the flow out of the flume. As submergence increases, a point is reached where the impact on the flow rate is large enough that the discharge equation overstates the flow out of the flume. This point is termed the submergence transition (St).
Equation — Flume Submergence Transition
S = submergence ratio
St = submergence transition
Ha = depth at the point of measurement (feet / meters)
Hb = depth at the point of measurement (feet / meters)
St = submergence transition
Ha = depth at the point of measurement (feet / meters)
Hb = depth at the point of measurement (feet / meters)
The submergence transition (St) for the 36-inch Parshall Flume is 70%. At 70% or above and the indicated discharge needs to be corrected to reflect the actual discharge.
Related Blog Posts
Explore more insights in our blog.
LOCATIONS IN ATLANTA, GA & BOISE, ID