This website uses a variety of cookies, which you consent to if you continue to use this site. You can read our Privacy Policy for
details about how these cookies are used, and to grant or withdraw your consent for certain types of cookies.
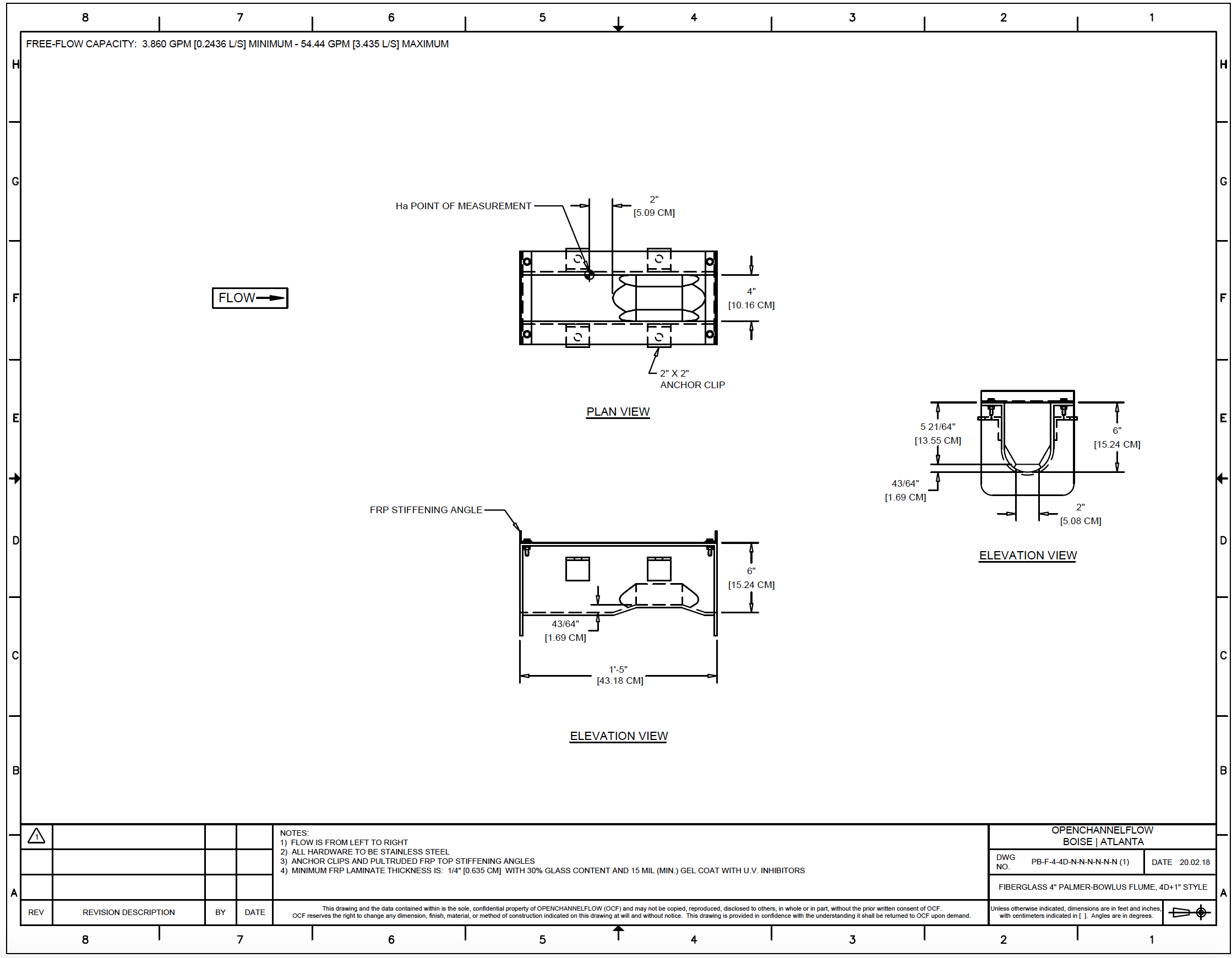
The 4-Inch Palmer Bowlus Flume
The 4-inch Palmer Bowlus Flume is the smallest of the Palmer Bowlus family of flumes. The flume can pass sanitary solids without clogging.
Applications

The 4-inch Palmer Bowlus Flume is used to measure:
- Dam seepage
- Industrial pretreatment monitoring
- Mine discharge
- Wastewater treatment plants
- Waste / interplant flows
- Lagoons
Palmer Bowlus Flumes are not usually used to measure surface waters.
Styles & Configurations
Palmer Bowlus Flumes have more flexibility in their layout than other flume types. They have both a style (physical layout) and a configuration (how they can be adapted to flow streams).
The 4-inch Palmer Bowlus Flume is available in four different styles:
- Permanent style with approach
- Permanent style without approach
- Insert style
- Cutback style
The flume is also available in four different configurations:
- Plain
- Customer to form transitions into / out of the flume
- Bulkheads with stubs / flanges
- Stubs and flanges up to 4-inches [10.16 cm] can be accommodated
- Staged ends
- Curved inlet or outlet to mate flush against the inside of a manhole barrel
- Metering Manholes (factory integration into a fiberglass manhole structure)
Flume Accuracy
Where the head in the flume is large compared to the length of the throat, Palmer Bowlus Flumes are accurate to within +/- 3-5%.
For lower flows where the head is low compared to the length of the throat, the accuracy decreases to +/-5-6%.
Palmer Bowlus Flumes are best when used within a defined level range.
The recommended head should be between:
0.1D < H < 0.6D
Also, unlike the Parshall Flume, corrections for settling have not been developed for Palmer Bowlus Flumes. It is important that the flume is installed and remains level.
Flume Dimensions
Unlike Parshall Flumes, Palmer Bowlus Flumes ARE scale models of each other.
A Palmer Bowlus Flume's dimensions are solely based upon the throat width D.
Free-Flow Equation
The free-flow equation for Palmer Bowlus Flumes is:

For the 4-inch Palmer Bowlus:
| Minimum Head (ft) | 0.06 | Minimum Head (m) | 0.0183 |
| Minimum Flow Rate (cfs) | 0.0086 | Minimum Flow Rate (l/s) | 0.2436 |
| Maximum Head (ft) | 0.25 | Maximum Head (m) | 0.0762 |
| Maximum Flow Rate (cfs) | 0.1213 | Maximum Flow Rate (l/s) | 3.435 |
| Equation (cfs, ft) | 1.68*H1.9 | Equation (l/s, m) | 486.34*H1.9 |
Discharge Table
The flow table for the 4-inch Palmer Bowlus Flume is available for download.
The table provides:
- Permanent style (with approach) dimensions
- Plan view of the flume with the primary point of measurement (Ha) shown
- Discharge equations in (3) Imperial and (2) SI units
- Submergence transition (St)
- Source of the flow table
Materials
The 4-inch Palmer Bowlus Flume is available in fiberglass construction.
Submergence Transition
The high submergence transition (St) for Palmer Bowlus Flumes - 85-90% - means that it is impractical to correct for submergence (and no corrections have been developed).
Explore more insights in our blog.
LOCATIONS IN ATLANTA, GA & BOISE, ID
