This website uses a variety of cookies, which you consent to if you continue to use this site. You can read our Privacy Policy for details about how these cookies are used, and to grant or withdraw your consent for certain types of cookies.
Skip to main content

The 6-Inch Parshall Flume

The 6-inch Parshall Flume is one of the sizes developed by Dr. Parshall during his initial studies. The flume works well in measuring water rights and can be found as smaller wastewater treatment plants.

Applications

The 6-inch Parshall Flume has been successfully used to measure flow in a number of different applications:

  • Dam seepage
  • Industrial pre-treatment monitoring
  • Mine dewatering
  • Smaller surface waters
    • Creeks
    • Streams
  • Wastewater treatment plants
    • Headworks
    • Discharge
    • Inter-plant flows
  • Water rights & apportionment

Configurations

The 6-inch Parshall Flume is available in several configurations:

  • Standard (inlet / outlet transitions by others)
  • End adapters (for connecting to flanges or pipes)
    • Stubs and flanges up to 21-inches [53.34 cm] can be accommodated
  • Metering manholes (integrating a flume into a fiberglass manhole)
    • A 48-inch [1.22 m] diameter barrel must be used when integrating a 6-inch Parshall flume into a metering manhole
  • Wing Walls
    • Standard wing walls span channels up to 2-feet 11 1/2-inches [0.92 m] wide
6-inch frp parshall flume for a WWTP with pipe stubs

Flume Accuracy

Laboratory research has shown Parshall Flumes accurate to within +/-2%.

It is more practical to expect the flume's free-flow accuracy to be closer to +/-5% (ASTM D1941) once the approach conditions, flume's installation, and construction tolerances are considered.

Should the flume submerge, the actual discharge flow rate can vary widely from the indicated flow rate. If submergence is suspected, a universal flow equation is available to correct the flow rate.

The accuracy of a flume can be affected by settling. A correction for settling has been developed to correct the flow rate.

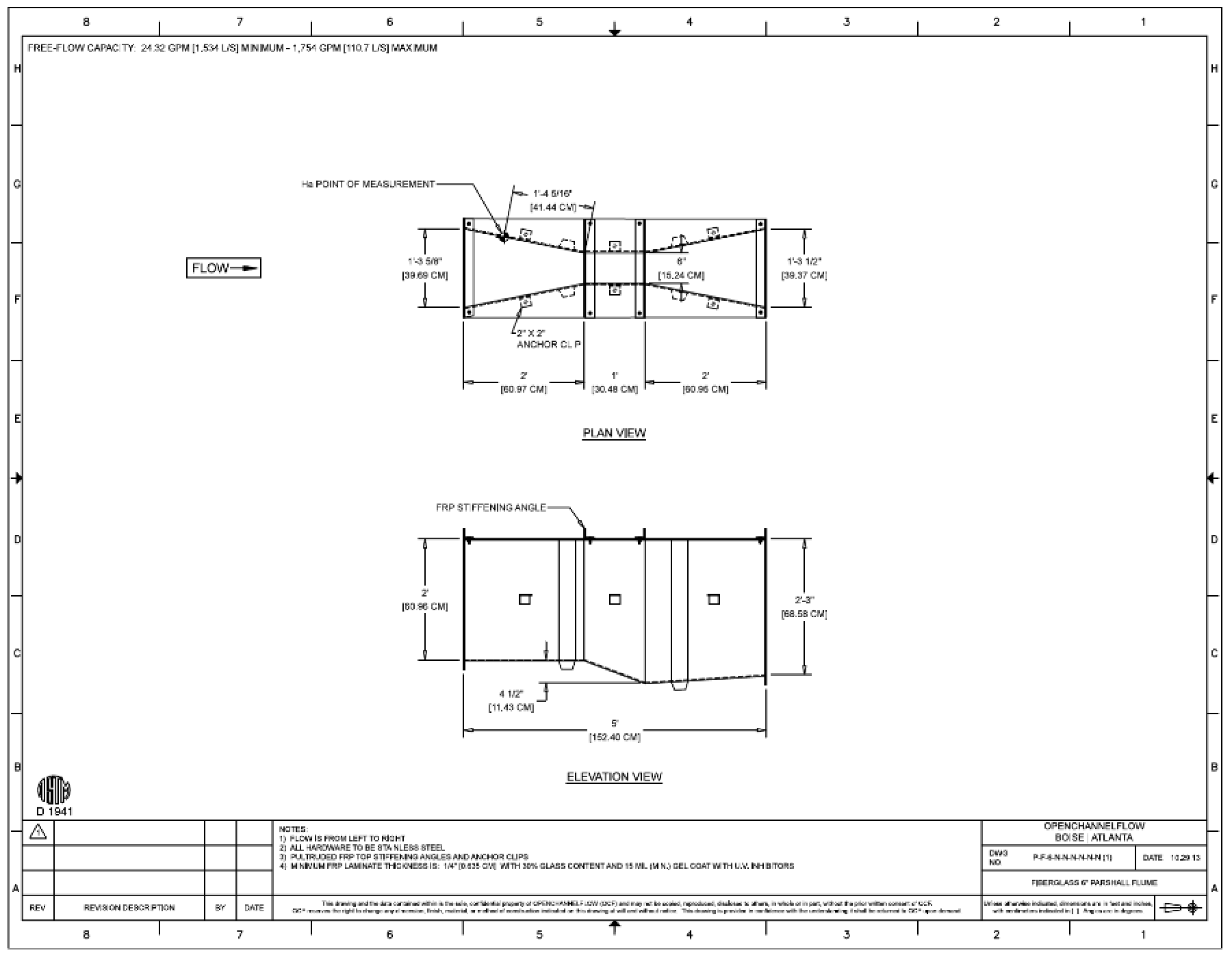
Flume Dimensions

6-inch parshall flume dimensions image

Remember that Parshall Flumes aren't scale models - while the flumes are similar in layout, they do differ. Never use intermediate or untested sizes.

Free-Flow Equation

The free-flow equation for Parshall Flumes is:

Equation — Parshall Flume Free-flow

Q = free flow rate (cfs / m3/s)
K = flume discharge constant (varies by flume size / system of units)
Ha = depth at the point of measurement (feet / meters)
n = discharge component (dimensionless, depends upon flume size)

Values for the 6-inch Parshall Flume are:

Minimum Head (ft) 0.10 Minimum Head (m) 0.0305
Minimum Flow Rate (cfs) 0.0542 Minimum Flow Rate (l/s) 1.534
Maximum Head (ft) 1.50 Maximum Head (m) 0.4572
Maximum Flow Rate (cfs) 3.909 Maximum Flow Rate (l/s) 110.7
Equation (cfs, ft) 2.06*H1.58 Equation (l/s, m) 381.2*H1.58

Discharge Table

The free flow discharge table for the 6-inch Parshall is available for download.

The table provides:

  • Top-down view of the flume with the Ha (primary point of measurement) shown
  • Discharge equations in SI and Imperial units
  • Flume's accuracy
  • Submergence Transition (St)
  • Source for the table's information

Materials

Openchannelflow's 6-inch Parshall Flume is available in several materials:

Of the materials, fiberglass is the most customizable.

Submergence Transition

The Submergence Transition (St) of a flume is that point at which the downstream conditions sufficiently reducer the discharge out of the flume that the indicated flow rate needs to be corrected.

Equation — Flume Submergence Transition

S = submergence ratio
St = submergence transition
Ha = depth at the point of measurement (feet / meters)
Hb = depth at the point of measurement (feet / meters)

The Submergence Transition for a 6-inch Parshall Flume occurs at 60%. At or above this point and the flume's discharge needs to be adjusted to reflect the actual flow rate.

Related Blog Posts

  • Expert Insights

    Parshall Flume Advantages

  • Expert Insights

    Parshall Flumes for Industrial Pretreatment Discharges

  • Expert Insights

    Parshall Flumes: Free and Submerged Flow

    Parshall flume free-flow discharge

Explore more insights in our blog.

LOCATIONS IN ATLANTA, GA & BOISE, ID

Start your project today