This website uses a variety of cookies, which you consent to if you continue to use this site. You can read our Privacy Policy for
details about how these cookies are used, and to grant or withdraw your consent for certain types of cookies.
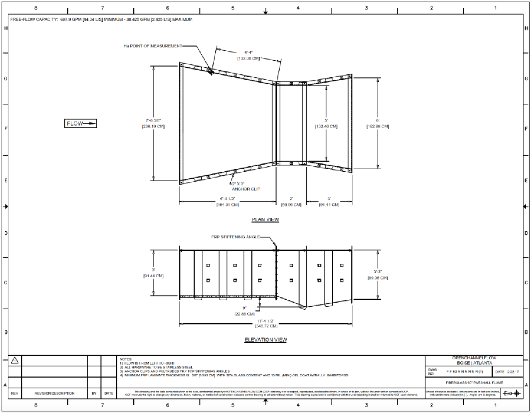
The 60-Inch Parshall Flume
The 60-inch Parshall Flume is a large flume, usually shipped in two pieces, that is primarily used to measure flows for water rights and watershed measurement as well as at sewage treatment plants.
Applications
The 60-inch Parshall Flume is useful in a number of applications:
- Surface water
- Streams
- Rivers
- Water rights
- Canals
- Wastewater treatment plants
Configurations
Openchannelflow offers the 60-inch Parshall Flume in two different configurations:
- Plain
- For field formed inlet / outlet transitions
- Wing Walls
- Inlet / outlet wing walls for rectangular channels
The flume is too large to easily integrate into a flow metering manhole.
Flume Accuracy
For a properly installed 60-inch Parshall Flume, it is typical to expect accuracies of +/-5% (ASTM D1941). Laboratory investigations have shown greater accuracy (+/-2%), but once dimensional tolerances, upstream conditions, and the installation itself are considered, +/-5% is more realistic to expect.
Should the flume ever experience submergence or shift out of position, corrections for both.
Flume Dimensions
ASTM D1941 requires that the dimensions of Parshall Flumes be within +/-2% of nominal for the flume to be accurate.
Free-Flow Equation
For a Parshall Flume the general free-flow equation is:
Equation — Parshall Flume Free-flow
Q = free-flow rate (cfs / m3/s)
K = flume discharge contstant (varies by flume size / systems of units)
Ha = depth at the point of measurement (feet / meters)
n = discharge component (dimensionless, depends upon flume size)
K = flume discharge contstant (varies by flume size / systems of units)
Ha = depth at the point of measurement (feet / meters)
n = discharge component (dimensionless, depends upon flume size)
For a 60-inch Parshall Flume:
| Minimum Head (ft) | 0.20 | Minimum Head (m) | 0.0610 |
| Minimum Flow Rate (cfs) | 1.555 | Minimum Flow Rate (l/s) | 44.04 |
| Maximum Head (ft) | 2.50 | Maximum Head (m) | 0.7620 |
| Maximum Flow Rate (cfs) | 80.53 | Maximum Flow Rate (l/s) | 2425 |
| Equation (cfs, ft) | 30*H1.587 | Equation (l/s, m) | 3732*H1.587 |
Discharge Table
The free flow discharge table for the 60-inch Parshall is available for download.
The table provides:
- Top-down view of the flume with the Ha (primary point of measurement) shown
- Discharge equations in SI and Imperial units
- Flume's accuracy
- Submergence Transition (St)
- Source for the table's information
Materials
Openchannelflow offers 60-inch Parshall Flume in four different materials:
- Fiberglass (FRP)
- Lightweight and customizable
- Two-piece construction
- Galvanized steel
- Economical
- One-piece construction available
- Stainless steel
- Greatest resistance to abrasion and corrosion
- One-piece construction available
Submergence Transition
Submergence in a flume occurs when the downstream conditions restrict the flow out of the flume.
While negligible at first, as the submergence increases a point is reached where the actual flow rate and the indicated flow rates are sufficiently different that a correction has to be made. This point is termed the submergence transition (St).
Equation — Flume Submergence Transition
S = submergence ratio
St = submergence transition
Ha = depth at the point of measurement (feet / meters)
Hb = depth at the point of measurement (feet / meters)
St = submergence transition
Ha = depth at the point of measurement (feet / meters)
Hb = depth at the point of measurement (feet / meters)
The submergence transition (St) for the medium sized Parshall Flumes like the 60-inch is 70%. At or above this point and the indicated discharge needs to be corrected to reflect the actual discharge.
Related Blog Posts
Explore more insights in our blog.
LOCATIONS IN ATLANTA, GA & BOISE, ID