This website uses a variety of cookies, which you consent to if you continue to use this site. You can read our Privacy Policy for details about how these cookies are used, and to grant or withdraw your consent for certain types of cookies.
Skip to main content

The 72-Inch Parshall Flume

As Parshall Flumes get larger they become more restricted in their uses. The 72-inch Parshall Flume is primarily used to measure flows at treatment plants, water rights, and surface waters. Due to its size, the 72-inch Parshall Flume usually ships in two pieces.

galvanized steel parshall flume measuring water rights in Colorado

Applications

The 72-inch Parshall Flume is primarily used to measure the flow of water in:

  • Mine dewatering applications
  • Surface waters
    • Rivers and streams
    • Catchments
    • Watersheds
  • Water rights
    • Canals
  • Wastewater treatment plants​

Configurations

Openchannelflow offers the 72-inch Parshall Flume in two different configurations:

  • Plain
    • Requiring field formed transitions
  • Wing Walls
    • Inlet or outlet walls to span rectangular channels

Regardless of which configuration is selected, the 72-inch Parshall Flume usually ships in two-pieces for ease of handling.

Flume Accuracy

Field conditions should see a Parshall Flume accurate to within +/-5% (ASTM D1941) with proper upstream flows, good installation, and a flume that is in dimension.

Over time a flume may settle or submerge. If this happens, corrections have been developed for both conditions.

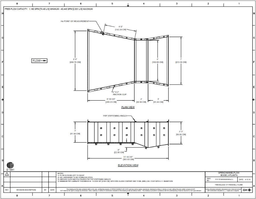
Flume Dimensions

72-inch parshall flume dimensions thumbnail

While similar in layout, Parshall Flumes are not scale models of each other. The flumes differ in section lengths and convergence / divergence angles.

Free-Flow Equation

The general, free flow equation for a Parshall Flume is:

Equation — Parshall Flume Free-flow

Q = free flow rate (cfs / m3/s)
K = flume discharge constant (varies by flume size / system of units)
Ha = depth at the point of measurement (feet / meters)
n = discharge component (dimensionless, depends upon flume size)

For the 72-inch Parshall:

Minimum Head (ft) 0.20 Minimum Head (m) 0.0610
Minimum Flow Rate (cfs) 2.630 Minimum Flow Rate (l/s) 74.48
Maximum Head (ft) 2.50 Maximum Head (m) 0.7620
Maximum Flow Rate (cfs) 103.5 Maximum Flow Rate (l/s) 2931
Equation (cfs, ft) 24*H1.595 Equation (l/s, m) 4521*H1.595

Discharge Table

The free flow discharge table for the 72-inch Parshall is available for download.

The table provides:

  • Top-down view of the flume with the Ha (primary point of measurement) shown
  • Discharge equations in SI and Imperial units
  • Flume's accuracy
  • Submergence Transition (St)
  • Source for the table's information

Materials

Openchannelflow offers the 72-inch Parshall Flume in three different materials:

Submergence Transition

Submergence in a flume occurs when the downstream conditions are such that they restrict the flow out of the flume. A point is reached, as submergence increases, where the difference between the actual and indicated flow rates is large enough that a correction has to be made. This point is termed the submergence transition (St).

Equation — Flume Submergence Transition

S = submergence ratio
St = submergence transition
Ha = depth at the point of measurement (feet / meters)
Hb = depth at the point of measurement (feet / meters)

The submergence transition (St) for the 72-inch Parshall Flume is 70%. At a submergence of 70% (or above) and the indicated discharge needs to be corrected to reflect the actual discharge.

Related Blog Posts

  • Expert Insights

    The 36-Inch Parshall Flume

    36-inch stainless steel parshall flumes for Iraq
  • Expert Insights

    The 48-Inch Parshall Flume

  • Expert Insights

    The 60-Inch Parshall Flume

Explore more insights in our blog.

LOCATIONS IN ATLANTA, GA & BOISE, ID

Start your project today