This website uses a variety of cookies, which you consent to if you continue to use this site. You can read our Privacy Policy for
details about how these cookies are used, and to grant or withdraw your consent for certain types of cookies.
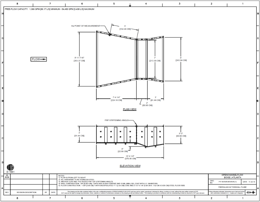
The 84-Inch Parshall Flume
As Parshall Flumes get larger there are fewer applications that they fit beyond measuring surface waters and treatment plant flows. Even then, the 84-inch Parshall Flume is not frequently used - the flow rates for these applications are usually smaller or larger than the 84-inch Parshall Flume's operating range. Due to its size, the 84-inch Parshall Flume ships in two pieces for field assembly.
Applications
The 84-inch Parshall Flume is normally only used to measure:
- Surface waters
- Rivers / streams
- Catchments
- Watersheds
- Water rights
- Canals
- Wastewater treatment plants
Configurations
Due to its size, the 84-inch Parshall Flume is only offered in two different configurations:
- Plain
- Requiring field formed transitions
- Wing Walls
- Inlet or outlet walls to span rectangular channels
Regardless of which configuration is selected, the 72-inch Parshall Flume usually ships in two-pieces for ease of handling.
Flume Accuracy
With proper upstream flows, a good installation, and a flume that is in dimension, an 84-inch Parshall Flume can be as accurate as +/-5% (ASTM D1941).
In the unlikely even that the flume settle or possibly submerges, corrections can be made to the flow equation.
Flume Dimensions
While similar in layout, Parshall Flumes are not scale models of each other. The flumes differ in section lengths and convergence / divergence angles.
Free-Flow Equation
The general, free flow equation for a Parshall Flume is:
Equation — Parshall Flume Free-flow
Q = free flow rate (cfs / m3/s)
K = flume discharge constant (varies by flume size / system of units)
Ha = depth at the point of measurement (feet / meters)
n = discharge component (dimensionless, depends upon flume size)
K = flume discharge constant (varies by flume size / system of units)
Ha = depth at the point of measurement (feet / meters)
n = discharge component (dimensionless, depends upon flume size)
Substituting for the 84-inch Parshall Flume:
| Minimum Head (ft) | 0.25 | Minimum Head (m) | 0.0762 |
| Minimum Flow Rate (cfs) | 3.043 | Minimum Flow Rate (l/s) | 86.17 |
| Maximum Head (ft) | 2.50 | Maximum Head (m) | 0.7620 |
| Maximum Flow Rate (cfs) | 121.4 | Maximum Flow Rate (l/s) | 3438 |
| Equation (cfs, ft) | 28*H1.601 | Equation (l/s, m) | 5318*H1.601 |
Discharge Table
The free flow discharge table for the 84-inch Parshall is available for download.
The table provides:
- Top-down view of the flume with the Ha (primary point of measurement) shown
- Discharge equations in SI and Imperial units
- Flume's accuracy
- Submergence Transition (St)
- Source for the table's information
Materials
Openchannelflow offers the 84-inch Parshall Flume in two different materials:
- Fiberglass (FRP)
- Lightweight / customizable
- Galvanized steel
- Good for areas where cattle are present
Submergence Transition
Submergence occurs when the downstream restrict the flow out of a flume. As submergence increases, a point is reached where the difference between the indicated and actual flow rates is large enough that a correction needs to be made.
This point is termed the submergence transition (St).
Equation — Flume Submergence Transition
Q = free flow rate (cfs / m3/s)
K = flume discharge constant (varies by flume size / system of units)
Ha = depth at the point of measurement (feet / meters)
n = discharge component (dimensionless, depends upon flume size)
K = flume discharge constant (varies by flume size / system of units)
Ha = depth at the point of measurement (feet / meters)
n = discharge component (dimensionless, depends upon flume size)
70% is the submergence transition (St) for the 84-inch Parshall Flume. At or above this point and the indicated discharge needs to be corrected to reflect the actual discharge rate.
Related Blog Posts
Explore more insights in our blog.
LOCATIONS IN ATLANTA, GA & BOISE, ID